Designing family-focused residential homes in New Jersey
An architect is like an orchestra conductor, but instead of leading trumpeters and violinists, an architect supports homeowners by directing designers; draftspeople; civil, structural, mechanical, and electrical engineers; attorneys; building officials; and contractors.
At Keith A. Kirsch, Architect, LLC., we do more than make buildings look pretty, we orchestrate your dream home.
New construction for single-family homes
Our team listens to your family’s needs, 3D models the design for you to visualize, and creates highly acclaimed construction drawings to guide your builder in the field.
Major renovations on existing houses
To make your current home the perfect fit, a major home renovation works within the boundaries of your existing property and retrofits your house to meet your family’s growing needs.
Additions and expansion for more family space
When it feels like your growing family needs more room, an addition can be a great way to add on a family room, additional bedrooms, or expand your primary bedroom and bath.
Our process and services
-

Consultation and discovery
When working with a new client, we prioritize understanding your family’s needs and your overall vision. By determining your requirements up front, we can create a design that checks every box.
-

Schematic design and 3D modeling
During the design phase, we use your requirements to sketch options for your new home or renovation. Then, we share our schematic design 3D model and work with you to tailor it to your vision.
-

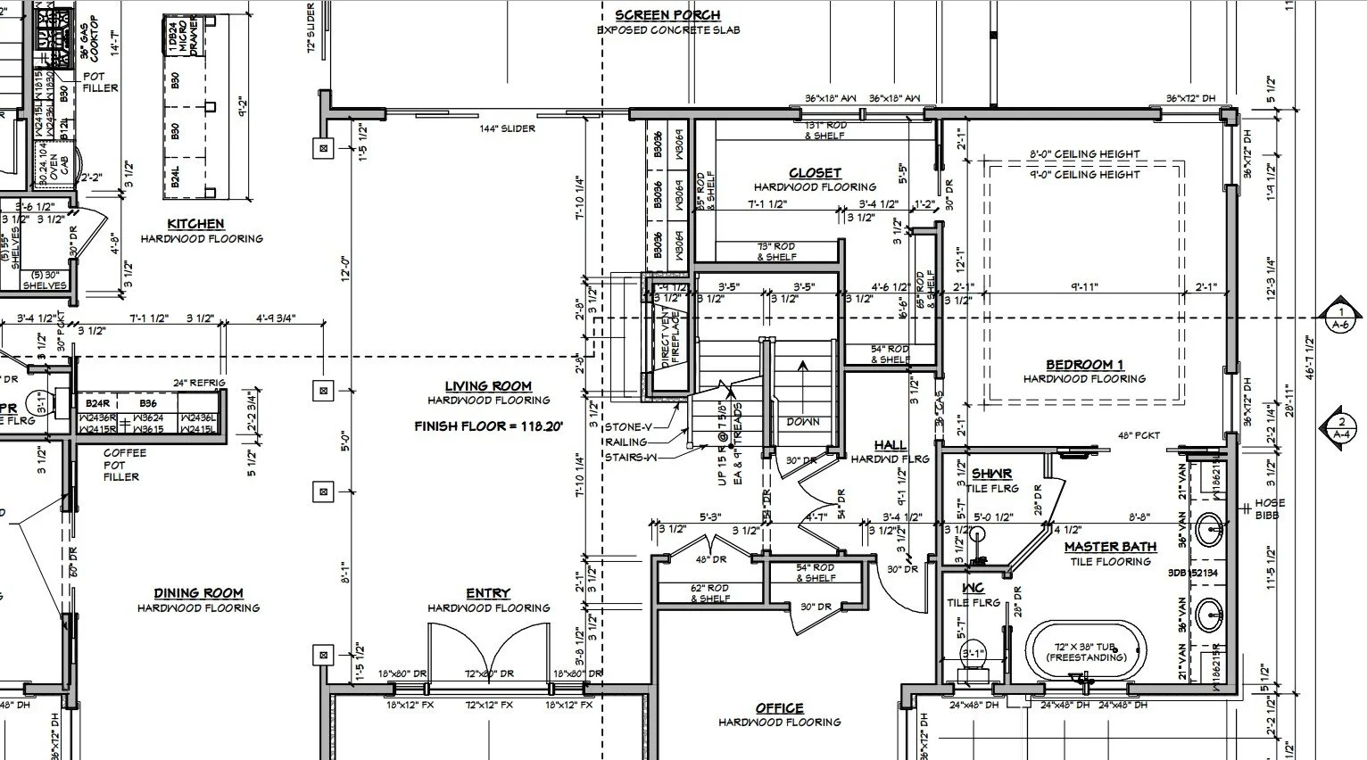
Construction drawings
Our firm uses our deep engineering expertise and building code knowledge to draw your construction drawings. With our attention to detail, contractors have the information they need for flawless work in the field.
Client testimonials
CUSTOMIZED HOME DESIGNS
Frequently asked questions
-
Why choose an architect over a contractor?
-
Can I draw my own house plans?
-
What makes 3D modeling so important?
-
How much is my project going to cost?
Let’s work together
We’re always excited about our next project. Send us a message outlining your goals for your project, and we’ll reach out to schedule an initial consultation.