Why Choose an Architect Over a Contractor?
Home renovations are exciting, but they can also be overwhelming. Whether you’re adding an extension, remodeling your kitchen, or gutting an entire floor, the decisions you make early in the process can dramatically affect the outcome. One of the first big questions homeowners face is whether or not to hire an architect.
A common misconception is that hiring an architect is an unnecessary expense. Some homeowners assume that drawing their own floor plans or working directly with a contractor will save money and speed things up. In reality, skipping the expertise of a licensed architect can cost more in the long run—in time, money, and peace of mind.
To understand why, let’s break down three common scenarios homeowners face when starting a renovation project and explore the pros and cons of each.
Hiring an architect saves you time, money, and stress during a home renovation
Scenario 1: Hiring an architect first
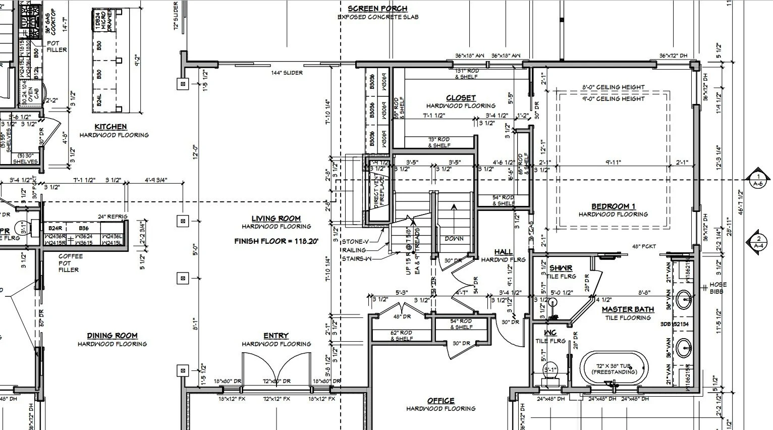
In this scenario, you begin by hiring an architect who works with you one-on-one to design your project. Together, you’ll discuss your goals, budget, and vision. Your architect will create detailed, professional construction drawings that reflect not just what you want your home to look like, but also how it will function.
Your architect is typically more knowledgeable of the applicable construction codes, and structural considerations than the contractors, so you are likely to get a better end product.
Once the drawings are complete, you can submit them for bids from multiple contractors. This step is a critical advantage: Competitive bidding helps you get the best possible price for your project. You can compare estimates side by side, negotiate, and choose a contractor who aligns with your budget and timeline.
Lastly, you can also choose to retain your architect to observe the construction process. During construction, questions are bound to come up. Having your architect available to clarify drawings, resolve conflicts, or approve changes ensures your project stays true to your vision and is built efficiently and safely.
The benefits of hiring an architect:
Direct collaboration: You have full input on the design, which leads to a more personalized and functional result.
Cost transparency: Competitive bidding helps you avoid inflated construction costs.
Quality assurance: An architect can be retained to oversee construction and protect your investment.
Code compliance: Your architect designs your project to meet or exceed building codes and safety requirements from day one.
Scenario 1 offers homeowners the most control over both design and budget, making it the ideal choice for those who want to maximize the value of their renovation.
“We are still in the process of meeting with contractors to give us bid prices. One of the contractors had high praise for your design plans, saying they were very helpful in giving us a realistic estimate, so thank you again for the work you've put in thus far.”
— K. T.
Scenario 2: Hiring a contractor who provides a design
Many contractors offer “design-build” services, meaning they provide a design along with construction. At first glance, this seems like a convenient option. Contractors typically hire an architect or designer to create the necessary drawings—but because that architect’s fee is wrapped into the overall construction cost, you may not have direct access to them.
This means your ability to influence the design can be limited. The contractor may prioritize keeping costs down or using familiar building methods rather than tailoring the project to your unique needs and preferences. Once construction drawings are complete, you are generally committed to that contractor, meaning you lose the ability to bid the project out to others for a more competitive price.
The trade-offs of hiring a design-build contractor:
Limited design input: You may not be able to work closely with the architect on creative solutions or explore multiple design options.
No competitive bidding: You are typically locked into working with the contractor who produced the design.
Potential for misaligned priorities: The contractor’s primary goal may be efficiency and cost control, which might not result in the most creative or functional design.
Potentially shorter time frames: Design time may be reduced, construction drawings may be created sooner, and weeks of bidding time are eliminated, theoretically reducing the project time.
While Scenario 2 can still produce a satisfactory outcome, it gives homeowners less flexibility and control. It works best for straightforward projects where the design is secondary to speed and simplicity.
Scenario 3: Drawing your own plans
In an effort to save money, some homeowners take matters into their own hands by creating their own drawings and submitting them to their local building department for approval.
While this might work for very simple projects, like building a small deck, most additions and interior renovations are too complex for DIY plans. Check out our other FAQ for more details on why it’s not recommended to draw your own house plans.
If your drawings are incomplete, unclear, or do not meet code requirements, the building department may reject them or require revisions. In many cases, the plans will also need to be stamped with an architectural seal to move forward. At that point, you will still need to hire an architect, and they may need to redraw the plans entirely to meet professional standards, costing you more money and delaying your project.
Even if your drawings are approved, you may still face challenges during construction. Contractors rely on clear, detailed plans to understand how to build your project. If details are missing from the drawings, they may make assumptions or construction choices that result in surprises, costly change orders, or design compromises along the way.
The risks of drawing your own plans:
Approval delays: Building departments may reject DIY drawings, causing project delays.
Costly revisions: You may still end up hiring an architect later, doubling your costs,
Construction problems: Poorly detailed plans can lead to miscommunication and mistakes during construction.
Scenario 3 is typically not recommended unless the project is extremely small and simple. For most renovations, hiring an architect early in the process prevents headaches and keeps your project moving smoothly.
An architect is an investment, not an expense
The three scenarios above highlight an important truth: while you technically can complete a renovation without hiring an architect directly, doing so often limits your control, adds hidden costs, and increases the chance of problems.
Here’s why bringing in an architect from the start is a valuable investment:
1. Creative, functional design
Architects are trained to see possibilities you might miss. They can reimagine layouts, maximize natural light, and improve the flow of spaces. Whether it’s opening up a cramped kitchen, creating a seamless indoor-outdoor connection, or designing an expansive primary suite, architects bring creativity that enhances both daily living and resale value.
2. Technical expertise
In addition to design, architects are educated in engineering principles, structural integrity, fire safety, and construction techniques. They understand how to meet building codes and how to prevent costly mistakes. Their seal on your drawings is not just a formality—it’s for your family’s safety.
3. Budget banagement
Contrary to the misconception, architects can actually help you save money. By providing clear, detailed drawings, architects reduce misunderstandings during bidding and construction. With high-quality architectural plans, contractors can provide accurate estimates that are not inflated to cover uncertainties. Having more accurate estimates makes it easier for you to compare bids and avoid surprise costs down the road.
4. Project oversight
Sometimes homeowners hire architects not only for design but also for construction observation. When your architect is retained to observe the project, your architect checks in during the build to answer questions, resolve issues, and confirm the contractor’s work aligns with the design. Having this extra layer of oversight helps protect your investment.
5. Access to trusted contractors
Architects often have long-standing relationships with reputable contractors the architect knows have worked well with clients in the past. Your architect can recommend professionals who consistently deliver quality work, giving you confidence in your team from start to finish.
Making the choice to work with a licensed architect
Home renovations are major investments, not just in terms of money, but also in the comfort, safety, and long-term value of your property. While it may be tempting to skip hiring an architect to save costs upfront, the reality is that professional expertise pays dividends.
Ultimately, working with an architect ensures your project is thoughtfully designed, safely executed, and tailored to your needs. From the first sketch to the final walk-through, your architect is your partner in transforming your house into the home you’ve always imagined.
Send us a message with the details about your project, and we’ll walk you through the benefits of working with our firm.
Other common questions
-
What makes 3D modeling so important?
-
Can I draw my own house plans?
-
How much is my project going to cost?